




重庆新城·云樾上境
浏览量: 383
项目位于“山城中的山城”-重庆万州,万州这个地方有着更加陡峭的崖壁,更加起伏的山峦。爬坡上坎这个词似乎是为万州贴身打造的词语。凌空而起交织穿插的道路让人置身于天空之上。
新城·云樾上境
城市街角的修复与重塑
天空之城
云端之上

飞上天空去浮着,
看地球这弹丸在太空里滚着,
从陆地看到海,从海再看回陆地。
凌空去看一个明白。
——徐志摩《想飞》

项目位于“山城中的山城”-重庆万州,万州这个地方有着更加陡峭的崖壁,更加起伏的山峦。爬坡上坎这个词似乎是为万州贴身打造的词语。凌空而起交织穿插的道路让人置身于天空之上。


⊙重庆元素(图片来源:网络)
而崎岖的山地就带来了万州别样的地形特点—高切坡。而这种不利的地形因素往往被粗暴的处理成加固的高挡墙,这让人走在道路上会有压抑的观感。而本案就是对这种城市街角上高切坡修复重塑的一种尝试。
这不仅是造型的重塑,更是功能的重塑,空间的重塑。



⊙立面、功能、空间重塑

项目位于重庆万州江南新区,在南滨大道和318国道互通桥(机场路)的交汇处。区域内配套完善,有万州市内最好的教学资源。

⊙区位分析
从城市立交桥过来,映入眼帘的就是近35米高差的陡峭坡地。如何打造一个具有在地性的符合场地气质,并有效修复重塑城市界面的城市客厅。对我们来说既是一个机遇,也是一个挑战。

⊙场地剖面视线

// 元素提取
这是一个山上的房子,也是一个云端的房子,如何将这两者结合,放在本案中。体现出“这应该是这里的房子”的感觉,是我们需要探索的关键。


⊙山上、云端的房子
//方案设计
本项目规划用地56018㎡,总建筑面积111598㎡。其中示范区738㎡。主要人流来向是场地东南侧的南滨大道和机场路。且场地南侧的城市形象和昭示性较好,因此示范区设置在场地的东南角。前期作为销售中心蓄客展示,后期将作为社区配套服务用房永久保留。

⊙规划总平面图

⊙方案鸟瞰图
// 方案生成
在这种特殊地形条件下,需要设置一个建筑体量来连接城市道路和场地内大区,不能简单粗暴的在平面上放置体块,而是需要从竖向维度和空间流线上综合考虑。
从地面到大区标高有35米左右高差,既要考虑建筑体量坐落在场地上的结构成本合理性,也要考虑和大区样板房的高效连接。因此交通体的设置和每层空间的标高处理是需要重点考虑打造,整体设计的。

⊙设计推演


⊙方案效果图
// 建筑空间
建筑造型采用现代极简的风格,贯穿整个设计的斜切元素让建筑更简洁凝练。
“Less is More”在本案中完美体现。不张扬,低调和谐的同时,也具有示范区特有的昭示性和耳目一新的城市形象。

⊙剖轴侧
双电梯和吊层的设置,让空间没有过于直白,仿若置于天空之上的城市客厅。
整个建筑没有大开大挖,局部开挖和结构架空的方式相辅相成,没有大肆破坏原本的场地地形。

建筑倒映在水面上,如一幅拉长的山水画卷。如梦似幻,水景和植物的交相呼应,让整个画面更具灵动感。



⊙实景鸟瞰
架空层作为进入示范区内部的前场空间,不仅是整个建筑第一个层次的观景平台,也是活动组织,儿童休闲的场地。连廊的设置,仪式感十足。城市客厅部分的室内展示区,活力十足。屋顶花园作为城市观景平台,让人置身于天空之上。

⊙轴侧分解图
底层花径作为通往景观梯的道路,曲径通幽,给人以探索感。给人遐想的空间。

⊙花径意境图

⊙景观花径实景图
// 细节营造
每处空间细节的打造都秉持着极简凝练的风格,色彩和手法和谐统一,与景观室内一体打造,有序而自然。

⊙吊层
屋顶平台景观和建筑的一体化打造,让整个城市空中花园更加灵动自然。开阔的视野,镜面的水景倒影着天空,真实中透着些许梦幻,仿若天空之城。



⊙屋顶花园
白色和天空有一种契合感,让人感觉这就应该是天空之上的颜色。

⊙透视图

⊙檐口
// 参观动线
示范区动线不是单纯的水平方向延展,而是竖直和水平方向的综合考量。底部从城市道路接入景观花径,进入垂直景观提升梯。空中廊道的延伸接入吊层空间,层次多元丰富。第二个电梯将人流引入一层示范区室内空间,也能直接提升至屋顶花园,通过屋顶花园进入样板房区域。整个动线立体多维且引人入胜。

⊙动线分析图
// 建筑设计
建筑的主要功能前期作为示范区展示,后期作为物业管理用房使用。在前期设计的时候充分考虑后期的功能使用和流线问题。不进行大拆大改,节约成本,减少浪费。保证后期作为物业用房的使用合理性和舒适性。
<< 左右滑动查看方案图纸 >>



⊙室内实景图
// 细部设计
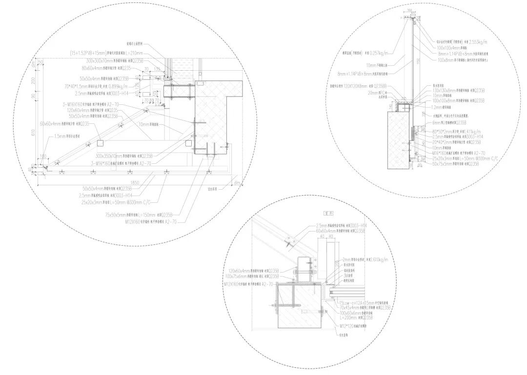
建筑主要材质采用白色铝板和型材,一体化设计。收边收口采用型材,挺拔笔直,富有张力和力量感。单块大面积玻璃划分,以及玻璃肋的设置,让立面更纯粹干净。钢结构和钢筋混凝土结构的合理搭配,让整个建筑更有深度。


⊙细部设计

// 设计难点分析
如何合理的放置主要建筑体块,使其土方开挖量小,且架空结构成本可控,景观面朝向合理。成为需要综合考量的关键性问题。流线的合理性,如何高效的串联各个建筑空间,也是贯穿整个设计的关键问题。
// 施工图深化难点
这不是简单的在水平方向的独立建筑,而是多平台多维度竖向空间衔接一体的山地建筑。如何在深化过程中,跟随方案随时调整,准确的连接底部入口、吊层平台、一层室内空间、屋顶平台成为比较繁杂的难点。
主体建筑和背后的车库连接,考虑了在前期作为示范区和后期局部作为车库通道和物业管理用房带来的前后改造影响。屋顶部分有上翻梁、吊层空间有加固圈梁和斜梁、景观电梯有斜撑钢梁,这些稍显不规整的结构对方案造型的影响,也是在深化过程中和结构与方案同事沟通完善解决,保证了方案的落地呈现。
// 结构难点
作为一栋典型的吊脚架空山地建筑,建筑场地高差大,需通过精确计算模拟不等高嵌固等要求;景观电梯为36米悬臂结构,在风、地震等作用下,电梯顶部水平变形大,影响乘坐电梯的舒适度,且底部钢柱在水平力作用下出现受拉情况;设计中通过稳定性分析确定了电梯的合理尺寸,并在非景观面设置斜撑,景观面考虑高空连廊为景观电梯提供侧向支撑,提高了结构整体刚度,改善了舒适度,同时保证了建筑的通透效果。另外针对钢柱受拉的情况,通过在基础中设置抗拔桩,有效保证了结构的抗倾覆性能。

⊙钢结构部分

⊙钢筋混凝土结构部分
// 现场施工难点
由于地形高差较大,且地形陡峭,需要搭建较高的脚手架,且为了固定基座需要从最底部平整部位开始搭建。在平场清坡阶段,充分考虑了此问题,在坡地中间部位平整护坡,脚手架从此处开始搭建施工,减少施工成本和缩短施工工期。
由于在坡地脚手架施工范围的局限性,最开始方案设计的较大出挑檐口,在工期和成本的影响下,做了相应调整。

⊙建筑剖面图







