




西安 学府郡营销中心
浏览量: 138
中国教育历史远流长,从礼教到国学,再到九年义务教育等。中国式教育是源于中国传统文化下形式和特色的。伴随着历史文化的发展,建筑室内设计也在发生着改变,本案并以传统书院中轴对称的空间形式作为基筑,在营造纵深感的同时传达书香殿堂的肃穆氛围。 Chinese education has a long history, from rituals to national education to nine-year compulsory education and so on. Chinese education is derived from the form and characteristics under the traditional Chinese culture. Along with the development of history and culture, the interior design of the building is also changing. This case also takes the symmetrical spatial form of the traditional academy as the base building, which creates the depth while conveying the solemn atmosphere of the hall of books.

FLOOR
PLANS
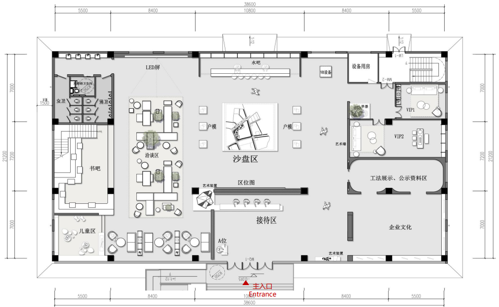
平面图

:一层平面

:二层平面

我们希望将当代书院体系融入到设计中,打造一个自然环境中幽静典雅、知行合一的礼序空间。进入前厅古典文化和现代美学映入眼帘,通过错落有致的结构以及色彩斑斓的背景墙来体现传统文化和艺术性。这种文化和艺术性所表现的既是传统的,又是当代的。
We hope to integrate the contemporary school system into the design to create a quiet and elegant space of ritual and order in a natural environment, where knowledge and practice are united. The classical culture and modern aesthetics are reflected when entering the vestibule, and the traditional culture and artistry are reflected through the staggered structure and the colorful backdrop. What this culture and artistry expresses is both traditional and contemporary.


来到沙盘区,明亮且充满书香气息的空间呈现在眼前。设计师将翻页中的书籍形态进行捕捉、得到柔美且有力量感的艺术吊顶装置。在自然光线与室内光源的双重作用下,呈现御光弄影的恣意,传递出本真的智慧之美。
Coming to the sandbox area, a bright and bookish space is presented. The designer captures the form of books in the turning pages and obtains a soft and powerful artistic ceiling installation. Under the dual effect of natural light and indoor light source, it presents the arbitrariness of light and shadow and conveys the beauty of true wisdom.
设计师将纸张折叠有序排列在墙面,通过充满阵列感的铺陈营建端雅的秩序感,使空间气质完成从繁华都市到静逸书院的转换与回归。同时绿色的点缀增加空间的跳跃度,提升整体质感。
The designer folded and arranged the paper on the wall in an orderly manner, creating a sense of order and elegance through the array of layouts, so that the space completes the transformation and return from a busy city to a quiet study. At the same time, the green accents increase the jumpiness of the space and enhance the overall quality.

金色吧台的介入抹去了单调,带来了一丝生活气息。承载着张扬跃动的当代情怀,与正统含蓄的中式情绪达成互融,营造充满活力的视觉美感。
The intervention of the gold bar erases the monotony and brings a touch of life. It carries the contemporary mood of vigorous leaps and bounds, and blends with the orthodox and subtle Chinese mood to create a vibrant visual aesthetic.


在洽谈区,以设计师跳脱出具象的束缚,以解构、拼贴的手法重新解读“东方”的概念。中式书柜的朦胧意境融合隔断和收纳承载的实用功能性,为东方意境之美的铺叙奠定了柔和的基调。在错落摆放的书册典籍与虚实的掩映下,使得深洽氛围也愈显神妙幽邃。
In the negotiation area, the designer breaks away from the bondage of figuration and reinterprets the concept of "Oriental" by deconstruction and collage. The hazy mood of the Chinese bookcase is fused with the practical functions of partition and storage, laying a soft tone for the narration of the beauty of oriental mood. With the staggered placement of books and tomes and the reflection of reality, the deep and harmonious atmosphere is also more subtle and profound.

倘若在落地艺术装置材质的肌理与纹路中细细探寻,便能找到其中潜藏的静谧,质朴自然真实的外在形态映照言行之雅。在纸张飞舞勾画之下满眼璀璨,如同芳华盛开,散发着摄人心魄的光彩。
If you look into the texture and pattern of the floor-to-ceiling art installation, you can find the quietness hidden in it, and the simple and natural external form reflects the elegance of words and actions. Under the paper's fluttering sketches, the eyes are full of brilliance, just like the blooming of a flower, emitting a captivating glow.



在当下社会环境中,人心浮躁,在书吧区域考虑色彩在空间中的延续性,将内外环境的色彩进行统一,达到整体整体形象现代大气的视觉享受。方便我们在完成了与当下情境的交互对话后,以更灵动、柔韧的姿态找回自我。
In the current social environment, people are impatient, in the book bar area consider the continuity of color in the space, unify the color of the internal and external environment, and achieve the overall overall image of modern atmosphere of visual enjoyment. It is convenient for us to find ourselves in a more flexible and supple posture after completing the interactive dialogue with the current situation.

PROJECT
OVERVIEW
项目概况
项目名称:学府郡
项目类型:展示中心
甲方单位:曲荣置业
硬装设计:ABD琥珀设计
项目摄影:LSSP罗生制片
项目面积:1843.56㎡
竣工时间:2021年9月
项目地址:陕西省西安市泾河新城
PAST
REVIEW
往期回顾
琥珀新作丨简约新潮-天府麓城营销中心 琥珀新作丨极简美学-国润城A5营销中心 琥珀新作丨如何表现乌托邦式私人会所空间?


岁 月 沉 淀 · 精 髓 凝 聚
追 求 完 美 · 铸 造 品 牌
每一次的用心,每一次的创新,琥珀一直与你同在
With each heart, each innovation, Amber is always with you

成都总部
Chengdu Headquarters
成都市高新区仁美大源印象商业2栋2-3楼
2-3F, Building 2, Renmei Dayuan Impression Commercial, Gaoxin District, Chengdu
西安分公司
Xi'an Branch
西安市CROSS万象汇首东置业大厦15A02
15A02, Shoudong Real Estate Building, CROSS Wanxiang Hui, Xi'an
T: 028-82889055
E: contact@abdamber.com
U: www.abdamber.com


