


上海宝华源墅私宅
浏览量: 50
本案设计位于上海闵行区的独栋别墅宝华源墅,套内面积650㎡,业主考虑一家五口长居,需求满足父母和子女日常居住的娱乐休闲活动功能空间,有共处聚会的公共空间,也要有各自独处的私密空间。
面积:650㎡
风格:现代轻奢
楼盘:宝华源墅
在繁华热闹的城市中, “家”不仅仅是满足基本功能需求的场所, 更是一个能够宽慰内心、静谧憩息的场域, 此处时光逝去,流转从容。
本案设计位于上海闵行区的独栋别墅宝华源墅,套内面积650㎡,业主考虑一家五口长居,需求满足父母和子女日常居住的娱乐休闲活动功能空间,有共处聚会的公共空间,也要有各自独处的私密空间。
结合业主所需,设计师从温暖的家庭氛围作设计主线,寻求从居住者的视角和切入点来重新审视每个细节,将时尚而温暖的轻奢风格作基调,空间采用以浅色系为底色,结合涂料、饰面、玻璃砖等材质,打造轻盈不失质感的家。

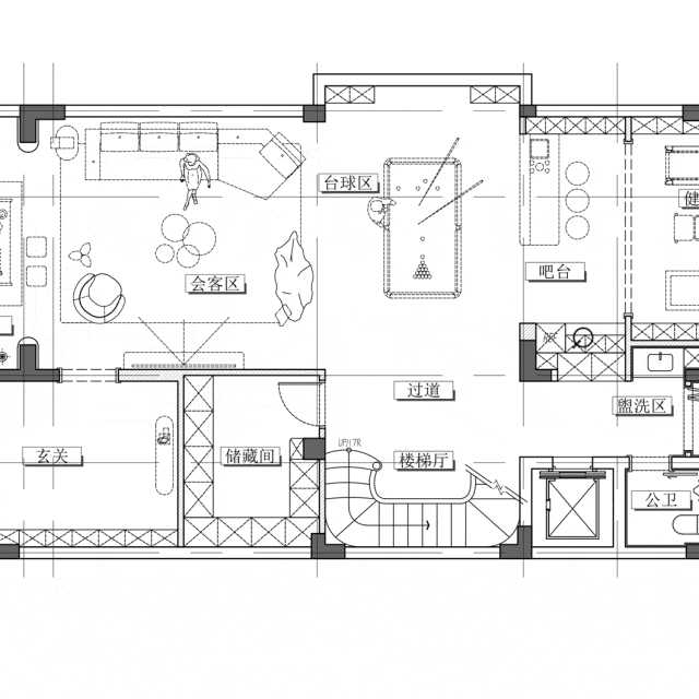
户型分析与设计改动
1、空间琐碎。 2、缺少独立衣帽空间。 3、二楼以上过道利用率低。
1、拆除多余的墙体,还原空间完整性。 2、重新设计独立套房和完整衣帽空间。 3、将细碎空间重新整理,设计仓储、装饰空间。

———— 将客厅搬进地下室
地下室的改造方案很多,在本案的设计中,为留出足够多的私密空间和公共共享空间,设计师另辟蹊径巧将客厅搬进地下室中,保留了大挑空的空间。


充分利用地下室挑空的采光优势,将茶室、会客厅、桌球区以及酒窖空间集成,让功能单调的客厅不再只局限于客厅的功能,打造了一个完整的地下室家庭休闲娱乐的功能空间。


从此,家庭聚餐、娱乐、休闲、休憩,这里是家中最惬意的娱乐区域,可以为所有家庭成员所共享。

———— 自然高级感时尚轻奢
恰到好处的元素搭配,色彩对撞,渲染精致空间,用温馨浪漫的视觉氛围避免大空间带来的清冷感,能巧妙的塑造出优雅而时尚的家居氛围。


设计师巧用低饱和度的色彩配以亮眼的复古红色,让整个空间变得更加柔和,在有限的空间当中,又让空间变得更加宽阔,营造出整个空间当中的舒适性。


淡雅高贵的色调,搭配时尚独特的家装配饰,使整个氛围充满了轻奢氛围。
———— 大理石邂逅金属
打造轻奢质感向来少不了大理石和金属的点缀,但不断刷新的审美打破着城市结构,推翻、重组、构建,形成新的场景能量。

设计师巧用暖白色调的大理石材质搭配金属、水晶、玻璃等材质,以精致为构建标准,在大理石石材与金属的勾勒下,营造意式轻奢的氛围感,灯光与自然光交织,娓娓道出静谧、品质、艺术的独特生活格调。


在舒缓的空间里, 寻找生活的雅致, 色调之间的穿插杂糅, 把家的性格制造了多种多样。




