




云南大华·锦绣华城售楼处
浏览量: 185
项目名称:云南大华·锦绣华城售楼处 硬装设计:上海岳蒙方案部 项目故事策划及ip:上海岳蒙研发部 设计负责人:岳蒙 参与设计:薛树国、葛益州、孙玫娜、徐强、张泽、陈功磊、赵相洋、陶诗卉、木子、朱亚丹、石梦茹 开发商:大理华嘉房地产开发有限公司 软装设计:上海那格装饰设计有限公司 甲方管理团队:大华集团设计管理中心及大华云南二公司 完工时间:2021年7月 项目地点:云南·大理 文案编辑:清歌传媒 摄影师:张瑞华、陆彬


一曲高歌,一鸣千金。
四季如春之处,栀子如画盛开。
花意阑珊,总有一壶清酒,
伴着归人与过客,穿过花间与林间。
沽酿而忘情,长歌以逸兴,
寻林而筑,归温柔乡矣。
01
故事:传递设计价值
设计的本质是解决问题。
对我们而言,云南大华这个项最重要的洞察、最需要解决的问题是什么?
通过沟通,了解到甲方想要的是,希望这个售楼空间能够用4-5年。
因此,我们思考:一处售楼设计,如何在5年后仍然生动漂亮?如何求解?
市场急速发展,风格的流变速度非常快,如果我们只是单一去参考当下市场上最流行的设计方向,最多保证空间2-3年不过时,但无法实现4-5年仍然生动漂亮的诉求。
对于这个问题,我们用三个手段,进行求解:
1.空间叙事性
以空间讲一个故事,软装与硬装的空间,都围绕着这个故事,作为核心的灵魂。所有的设计,因此而交织交融,把故事的气息,融进空间的每一处,形成特有的印象,让故事的价值得到长久的印记。
2.建筑方法
用建筑手段有取舍的去处理空间,在建筑内部,形成视觉识别和冲击、差异化。
3.个性IP形象
和当地文脉结合,定制一个生动可爱的IP形象,让这个形象在大理生根,打动客群,并能够与客群产生互动。
02
故事线:《栀子花酒》
首先,我们希望整个客户的参观体验之旅,能够用一个具有叙事性的故事来串联,所以我们既需要一个故事也需要一个IP。
在这个寻找的过程中,我们发现在《云南掌故》的书中曾介绍:自古热爱生活的云南富裕阶层,就喜欢养一种鸣叫声为“栀子花酒”的小鸟,而这种叫“栀子雀”的小鸟,甚至在旧云南形成了一个很大的养鸟产业。而这种小鸟中,叫声为:“花间一壶酒”的鸟儿,尤为珍贵,可谓一鸣千金,旧云南茶馆中甚至要重金聘请叫声优美的鸟师傅,来茶馆坐堂,为茶客们演唱。
“栀子花酒“这个名字非常优美,它不仅包含了小鸟美好的鸣唱、好看栀子花、酒,还是云南当地的小鸟。我们欣喜的看到,它包含了视觉、听觉、嗅觉、味觉的符号,内涵可爱亲切,是容易构建的IP,且形象更柔软、更具故事性,可以加强传播价值。
于是,我们策划了故事《栀子花酒》。
《栀子花酒》像电影一样,分为六幕,每一幕对应了一个场景和一个空间,分别为:


第一幕 · “诞生”
(前厅)
光阴斑驳,从树的枝丫、叶片之间,缓缓而过。是谁的初啼,清脆如斯,带着盎然的活力,带来色彩斑斓的新梦。唤醒一池春水酿新酒,唤醒草木沾青绿满园。

在云南美丽的原始森林中,有一颗枝丫交错的大树,树上的鸟巢里诞生了一只小小的栀子花雀,这个家庭里迎来了新的生命。
从客户层面上讲,这个诞生就是一个客户的切入点,也是隐喻了客户的家庭,也很可能也面对了新生命的诞生,并由此产生了购房的需求。
我们设计语言上从故事里的森林、枝枝丫丫、枝条上的鸟巢等,提炼视觉元素,首先前厅用木质装饰的柱子意向代表森林;其次对树和枝条的建构设计,像树冠、也像鸟巢。这些元素最终又围合成具有家、有归属感的人字坡的房子形状;最后,前台还放置了一个艺术化处理的“蛋”,代表着生命的诞生。





第二幕 · “初识”
(品牌区)
从南到北的风,吹暖一树又一树。用力的、再用力的绽开,每一片鲜嫩的叶芽。懵懂的眸光,探究世界的新奇,是等一朵花开,还是一场雨来,亦或是,一个新世界的久别重逢。

小鸟慢慢长大,它的父母教育它,教会它认识世界、与世界打交道。就像人类要上学,接受塑造、认识和适应环境。我们在项目空间上对应了,鸟巢的雕塑,用在前厅和品牌的过渡区,客户初次来到项目,了解品牌,也是初识大华地产,建立认识的过程。
而在相邻的外部景观区域,也做了一个“四季”雕塑,表现着四季轮回、春华秋实,代表着初识世界时的感受。


第三幕 · “飞翔”
(沙盘区)
一步一脚的印记,深深浅浅。属于生命的舞台在铺展,层层叠叠。来自田野,也来自远方。翅膀,理想,不是用来遮风,不是用来追逐,是用来成为它,成为一颗升起的新星。天空中的闪耀,是已飞过的痕迹。

当小鸟初识了世界,就要独立自主的面对生活的挑战和荣耀,它要在森林中获得自己的立足之地,完成挑战,克服困难,这种克服和成长,也是它生命中必要经历和积累,在这个过程中小鸟逐渐成长,逐渐游刃有余,逐步的在受限制的现实中翩翩起舞。为了讴歌这种成长,表达小鸟在森林满怀欣喜的起舞与翱翔。沙盘区上方我们设计了关于起舞飞翔的艺术吊灯,形态即像鸟的展翅飞舞,又像一群鸟的飞行轨迹。同时,户模造型也呼应着森林中枝枝丫丫的元素。


第四幕 · “欢唱”
(沙盘与洽谈过渡区)
日过正午,烟霞初歇。停驻与林间,可高歌梦的回响。隐约间,是谁的呼应,婉转悠扬,将熟未熟的心事,就此给出答案。如岁月研磨下的花间酒,如时光纵情中的月下歌。

小鸟在森林中不断学习、成长,在苦难和挑战中成就自己,逐渐的敬畏和热爱自己的生活。不断编制自己有关未来的美好的梦想。而这种来自内心深处的快乐和希望,使它本能的地欢唱。森林中满是:栀子花酒,栀子花酒,栀子花酒的歌声。他热烈的期待获得了美妙的回应,森林中回应起了:“花间一壶酒”的歌声。是的,一直美丽漂亮的雌鸟被它的美妙欢唱歌声吸引,也在不断鸣唱着“花间一壶酒”,与它的歌声相和。
“栀子花酒”与“花间一壶酒”歌颂生活、歌颂自然的歌声太美妙了,爱神被他们吸引而来,向这对小鸟送出了祝福,于是它们相爱了,它们组建了森林中的新家庭。因此,我们在沙盘与洽谈区之间,设计了一个抽象的梯子,梯子向上延伸的尽头有一面天窗,那是天使进出的地方,而在梯子的下端,我们放置了一个怀抱小鸟的天使,以此来呼应故事发展。





第五幕 · “筑巢”
(洽谈/水吧区)
踏柳欢歌,衔枝而筑,拂檐而下的,安放此间繁花如巢。
来访,路过,放歌而行,看吧,欢唱声中,不知不觉,檐下新花,又开放了。

小鸟找到了爱情,他们需要筑巢,找到名为家的庇护所,这里是整个故事的高潮,所以在空间节奏上也是高潮。小鸟们要在森林最高的树上,筑造最美的七彩鸟巢。于是在整个空间最高的区域中,我们把水吧区设计成七彩鸟巢的抽象形式,隐喻在森林中最高的树与最美的巢。就像人类一样,年轻人要比父辈过更好的生活,他们不懈努力着,也有能力去实现对生活的追求和向往。







第六幕 · “孕育”
(儿童区)
金风落玉露,岁月渐盈实。
黄澄澄的时光里,沉甸甸结下饱满的果实。
雨水连绵起,点滴至天明。
饮罢这盏酒,一颗颗种子,开始了新生。

当小鸟有了爱巢爱家,便展开自己的孕育旅程,开始孕育下一代。这一幕恰好在空间中对应到儿童区,有蛋形的游乐仓,非常形象,故事所表达的孕育新生命和儿童区也很匹配契合。



《栀子花酒》的故事讲完了,空间的旅程也结束了,我们整个故事都在讲述有关成长的主题,本质上那歌声美妙、努力奋斗的小鸟,在每一名购房客户身上都能找到相近的影子,我们也希望通过这种方式,来赞美我们的购房客户,来解决我们长时间构建空间识别的目的。
03
定制故事形象:花雀IP
我们给项目设定了一个花雀IP形象,2只小鸟依偎在一起,组建幸福的家庭,并且延伸了与云南当地文脉结合的文创周边,希望这个IP形象,像吉祥物一样,带着幸福与温暖的象征,走进云南大华的千家万户。





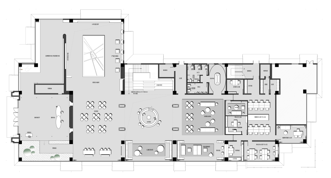
△一层平面图

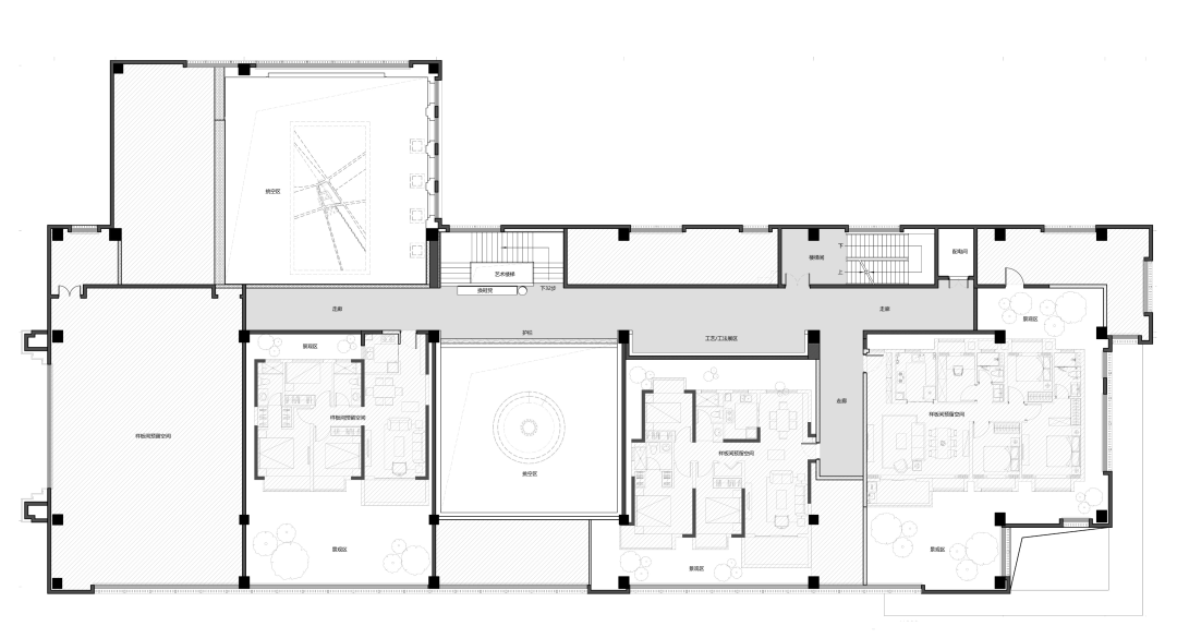
△二层平面图
项目名称:云南大华·锦绣华城售楼处
硬装设计:上海岳蒙方案部
项目故事策划及ip:上海岳蒙研发部
设计负责人:岳蒙
参与设计:薛树国、葛益州、孙玫娜、徐强、张泽、陈功磊、赵相洋、陶诗卉、木子、朱亚丹、石梦茹
开发商:大理华嘉房地产开发有限公司
软装设计:上海那格装饰设计有限公司
甲方管理团队:大华集团设计管理中心及大华云南二公司
完工时间:2021年7月
项目地点:云南·大理
文案编辑:清歌传媒
摄影师:张瑞华、陆彬


