




南沙·星图艺术馆科苑壹号
浏览量: 113
我们致力于提取潮流刺激、时尚独特、体验丰富、艺术人文的城市项目基因,集自然、IP植入为一体,以“生活馆”概念,承载诗与自然的和鸣,从而构成一个涵盖咖啡、花艺、科技、美学生活馆的社区模式。



在本案中,我们致力于提取潮流刺激、时尚独特、体验丰富、艺术人文的城市项目基因,集自然、科创教育、IP植入为一体,以“生活馆”概念,承载诗与自然的和鸣,从而构成一个涵盖咖啡、花艺、科技、美学生活馆的社区模式,实现文化、创意和分享的融合,营造一个理想生活方式的社区。
In This Case, We Are Committed To Extract The Current Stimulus, Fashionable Unique, Rich Experience, Art, Cultural City Project Of Genes, Natural, Kechuang Education And Ip Implanted Into An Organic Whole, In A "Living Museum" Concept, Carrying With The Sounds Of Nature Of Science And Technology, So As To Form A Covering Coffee, Flower Art, Science And Technology, Aesthetic Life Hall Community Model, Implementation Of The Fusion Of Culture, Creativity And Share, Create A Community With An Ideal Lifestyle.
星图艺术馆(科苑壹号)项目位于南沙区南沙湾,距离四号线南横地铁站仅500米,是南沙首个针对科创人才打造的人才住房项目,为南沙科学城建设及南沙高端战略科创人才引进提供有力保障。
Located In Nanshawan, Nansha District, The Project Of Star Map Art Gallery (SCIENCE ONE) Is Only 500 Meters Away From Nanheng Subway Station Of Line 4. It Is The First Talent Housing Project Designed For Scientific And Creative Talents In Nansha, Providing A Strong Guarantee For The Construction Of Nansha Science City And The Introduction Of High-End Strategic Scientific And Creative Talents In Nansha.

南沙地处南海之滨、珠江出海口,依海而生、因海而兴。
犹如层层海浪的前台背景墙,犹如飞鸟的吊饰蜿蜒前行,整个画面看起来像是成群白鹭凌空飞跃于海面,在静态的空间景象中置入一抹灵动活跃之意。
Nansha Is Located At The Coast Of The South China Sea And The Mouth Of The Pearl River.Like The Front Background Wall Of Waves, Like The Hanging Ornaments Of Birds Winding Forward, The Whole Picture Looks Like A Flock Of Egrets Flying Over The Sea, Placing A Flexible And Active Meaning In The Static Space Scene.

成群结队的白鹭,从前台区域延伸至沙盘区并盘旋汇聚于沙盘区上空,似是找到了与自然环境相处的态度,象征南沙引进人才,寓意着更多科技人才汇聚于南沙,百鸟归巢。
Groups Of Egrets Extend From The Reception Area To The Sand Table Area And Converge In The Sand Table Area. They Seem To Have Found The Attitude To Get Along With The Natural Environment, Which Symbolizes The Introduction Of Talents In Nansha And The Gathering Of More Scientific And Technological Talents In Nansha, And The Return Of Birds To The Nest.


由穿插花艺设计而成艺术装置,星球与弧线的交错,藤蔓的运用,科幻与自然交融,让纯粹的空间干净而不失趣味。光从大片落地玻璃外直射而进时形成的光与影,为静谧的空间雕琢出更多的动态质感,赋予空间氛围更多可能性。
It Is An Art Installation Designed By Interspersed Floral Art. The Interleaving Of Planets And Arcs, The Use Of Vines, The Blend Of Science Fiction And Nature, Make The Pure Space Clean And Interesting. The Light From The Large Floor-To-Ceiling Glass Directly Into The Light And Shadow, For The Quiet Space Carved Out More Dynamic Texture, Give Space Atmosphere More Possibilities.


本案中我们把建筑的一部分延伸到室内,将景观引进室内如阳光,绿植,从而增加室内外的互动性。设立于室内的垂直绿化植物墙,既不占空间,且可借由自动灌溉技术与外界的阳光进行光合作用并维持生长,从而保持四季长春。除此之外,还引入桂花树种植于室内,各种绿植在室内空间中形成天然的空气清新剂与香氛剂,蓬勃向上的生命力,展现了大自然可能被忽视的美。
In This Case, We Extend Part Of The Building To The Interior, And Introduce The Landscape Into The Interior, Such As Sunlight And Green Plants, So As To Increase The Interaction Between Indoor And Outdoor. The Vertical Green Plant Wall Set Up In The Room Does Not Take Up Space, And Can Maintain The Growth And Photosynthesis With The Outside Sunlight By Automatic Irrigation Technology, So As To Maintain The Changchun In All Seasons.In Addition, Osmanthus Trees Are Also Introduced And Planted Indoors. Various Green Plants Form Natural Air Fresheners And Fragrances In The Indoor Space, Showing The Vigorous Vitality And Beauty Of Nature That May Be Neglected.


IP主形象灵感来源,选用位于广州南沙的中科宇航火箭生产基地中,“宇航”“太空”的主题,结合项目附近中科院的进军科学理念,甄选出具有代表性的“航天宇航员”“太空人”形象作为主IP形象。结合星图艺术馆·科苑壹号项目中科技与美学相结合设计理念创作而出,让IP与人之间产生共鸣,成为衔接人与空间桥梁。IP形象为无表情设计,它通过生动的肢体语言演绎,来体现IP情感的表达。
The main inspiration of IP image comes from the theme of "astronautics" and "space" in the production base of Aerospace Rocket in Nansha, Guangzhou, and the representative images of "space astronauts" and "spacers" are selected as the main IP image in combination with the scientific concept of advancing in the Chinese Academy of Sciences near the project. It is created in combination with the design concept of combining science and technology with aesthetics in the project of Star Map Art Gallery · SCIENCE No.1, so that IP can resonate with people and become a bridge connecting people and space. IP image is expressionless design, it through the vivid body language interpretation, to reflect the expression of IP emotion.


沙龙区上方借“天窗”引入室外光景,将自然光影、生态置于整个空间,形成空间与自然融合相生的无界之境,营造繁华都市下回归生活的宁静感受。夜幕降临时,打开天窗,即成为可以看到星空的星图艺术馆。
The "Skylight" Above The Salon Area Introduces Outdoor Scene, Placing Natural Light And Shadow And Ecology In The Whole Space, Forming An Unbounded Environment Where Space And Nature Are Integrated, And Creating A Quiet Feeling Of Returning To Life In The Bustling City. When Night Falls, Open The Skylight,It Will Become A Star Map Art Gallery Where You Can See The Stars.


延续对公共空间情感属性的理解,进一步加强空间松弛感。摒弃过多的装饰物,任由情绪随着不同触感层层递进,最终享受身至心的完全放松状态。
Continue To Understand The Emotional Attributes Of Public Space, Further Strengthen The Sense Of Space Relaxation. Abandon Too Many Decorations, Let The Mood With Different Touch Layer By Layer, And Finally Enjoy A Completely Relaxed State From Body To Mind.



室内结合室外景观共创无界融合,引进”大落地窗“让阳光渲染室内的每一处空间,让视觉得以无限延伸,达到彼此交融渗透的借景效果。
Indoor Combined With Outdoor Landscape To Create Unbounded Integration, The Introduction Of "Large French Window" Let The Sunlight Render Every Space In The Room, So That The Vision Can Be Infinite Extension, To Achieve The Effect Of Blending And Permeating Each Other.


柔和的色调,细致的光影,充分感受到光线在空间流动。生活的轨迹,延顺着阅读的积累,衍生出永恒的诗意。以艺术与文学为核心的知识殿堂,贯穿于整个空间,将场景化与商业空间完美融合,营造出一个沉浸式情境。
Soft Tones, Meticulous Light And Shadow, Fully Feel The Light Flow In The Space. The Trajectory Of Life, Along The Accumulation Of Reading, Derived From The Eternal Poetry. The Knowledge Palace With Art And Literature As The Core Runs Through The Whole Space, Perfectly Integrating Scene And Commercial Space To Create An Immersive Situation.


作为消费场景的一种,售楼空间定位的不断迭代,从纯粹销售功能演变成多功能的生活体验馆,“去销售化”成为当下的趋势。不同于常规售楼部具有强烈地产与商业销售符号的功能分区,本案运用了营销叠加图书阅读的双重功能,这不仅是对“去销售化”的优雅实践,还兼顾了其优雅生活、科创教育、城市更新、环保等多命题的共同落地。
Different From The Conventional Sales Department With Strong Real Estate And Commercial Sales Symbols Of The Functional Division, This Case Uses The Dual Function Of Marketing Superposition Book Reading, Which Is Not Only The Elegant Practice Of "To Sell", But Also Take Into Account Its Elegant Life, Science And Innovation Education, Urban Renewal, Environmental Protection And Other Propositions Of The Common Landing.

为贴合星图艺术馆这个概念,我们在空间内展示了多种生植物艺术标本,置办了包括儿童图书、科学类、生物类、宇宙类、艺术类、生活类等上千本科创教育类的书籍,图书作为空间的主角,渗透在每个角落,每个视线当中,包围和渲染着空间中的形形色色。多元的文化内容与日常生活息息相关,激发人们的创意迸发,形成独特的美学氛围。自然、动植物生态之间的认知尺度,演绎着繁衍的生命力。
In Order To Fit The Concept Of Star Map Art Gallery, We Display A Variety Of Botanical Art Specimens In The Space, And Purchase Hundreds Of Creative Education Books, Including Children'S Books, Science Books, Biology Books And Universe Books. Books, As The Protagonist Of The Space, Permeate Every Corner And Every Sight.The Diversified Cultural Content Is Closely Related To Daily Life, Which Stimulates People'S Creativity And Forms A Unique Aesthetic Atmosphere. The Cognitive Scale Between Nature And Animal And Plant Ecology Represents The Vitality Of Reproduction.

空间不单是只设置地产性质的功能分区,同时也加入品牌咖啡区、烘焙区,科学手工区与儿童区等多个交流互动区域。品牌咖啡区的加入,给这个空间又添加了一抹休闲享受的色彩,醇厚的香味氤氲,述说着一杯咖啡研磨、过滤、萃取的完整过程,如同置身于美好社区的人们,在自然的世界里汲取知识的养分,从回顾过去到展望未来,美好是永恒的定义。
The Space Is Not Only Set Up With Real Estate Functional Areas, But Also Added Into The Brand Coffee Area, Baking Area, Scientific Handicraft Area And Children'S Area And Other Areas For Communication And Interaction. The Join Of Brand Coffee Area, For The Space Added A Bit Of Leisure To Enjoy Color, Full-Bodied Fragrance, Tells Of A Cup Of Coffee Grinding, Filtration, Extraction Of The Complete Process, As In The Good People Of The Community, In A World Of Natural Nutrients For The Acquisition Of Knowledge, From Looking Back At The Past To Look To The Future, The Definition Of Beauty Is Eternal.



在这个快节奏的时代中,“慢生活”也成为了不少人追求的生活方式,手工区的设立就是满足慢体验的形式之一。在这个科技人才社区中,我们选用科学实验作为手工区的主题,为来访者设置更多的互动体验方式。
In This Fast-Paced Era, "Slow Life" Has Also Become A Lifestyle Pursued By Many People. The Establishment Of Manual Area Is One Of The Forms To Meet The Slow Experience. In This Community Of Science And Technology Talents, We Choose Science Experiment As The Theme Of The Manual Area, So As To Set Up More Interactive Ways For Visitors To Experience.



除科学实验外,烘焙也是交流互动的诠释方式之一。烘焙是最有烟火气的疗愈空间,在自然木色的环绕中,准备着来访者随时可以品尝的美味,轻食烹饪的多样跟着不同节气变化,生活的体验细致的对待。
In Addition To Scientific Experiments, Baking Is A Way To Communicate And Interact. Baking Is The Most Firework Healing Space. Surrounded By Natural Wood Color, The Delicious Food Is Ready For Visitors To Taste At Any Time. The Variety Of Light Food Cooking Changes With Different Solar Terms, And The Life Experience Is Treated Carefully.

童梦儿童区集合“森林主题”、“迷你行星”、“植物小课堂”,营造一个属于孩童的“奇旅之境”。绿色、木色的基调与行星吊灯则共同渲染出一派自然和谐的风光,带动童趣的感官体验,激发儿童创想。
The Children'S Dream Area Integrates "Forest Theme", "Mini Planet" And "Small Class Of Plants" To Create A "Wonderland" For Children. Green, Wood Tone And Planetary Chandelier Together Render A School Of Natural And Harmonious Scenery, Drive Children'S Fun Sensory Experience, Stimulate Children'S Creativity.

雏鸟经历一番成长,已然化作展翅高飞的成鸟,自由地穿梭在竹编织作而成的流云纹浪中,植物圆球装置跳跃的色彩与生活共舞,勾勒出一幅动态飞鸟争鸣图简约的空间中孕育着自然诗意,传达未来生活的自然和谐与美好。
After Some Growth, The Nestlings Have Turned Into Adult Birds Flying High, Freely Shuttling In The Flow Moire Waves Made Of Bamboo Weaving. The Jumping Colors Of The Plant Ball Device Dance With Life, Outlining A Dynamic Birds Contending Picture. The Simple Space Is Pregnant With Natural Poetry, Conveying The Natural Harmony And Beauty Of Future Life.

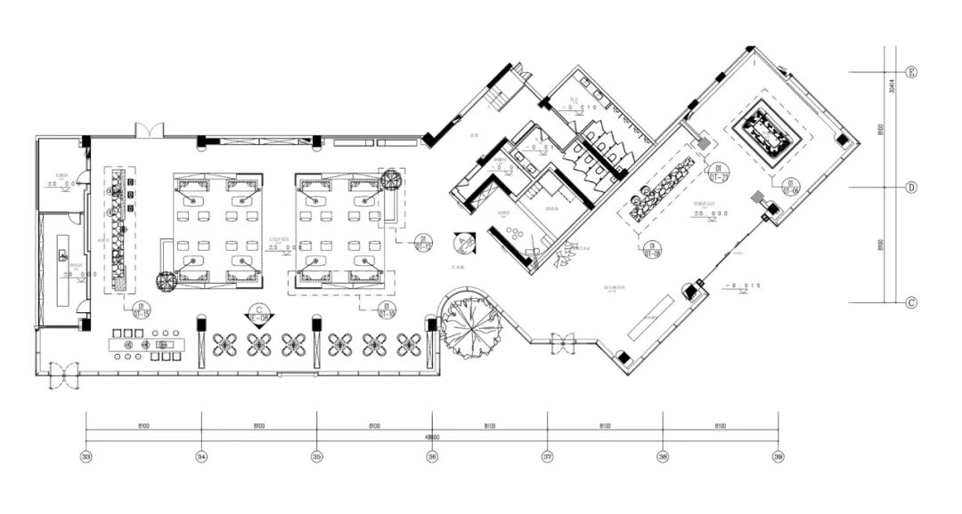
平面图
// Floor Plan //













